Devenez propriétaire d’une maison en cours de finition, construite par Maisons Batilor, à deux pas de la Suisse. Avec une vue imprenable, la maison est dans un environnement extrêmement privilégié. La première partie de la maison vient d’être achevée. L’extension contemporaine avec toit terrasse va pouvoir débuter. Vous pourrez devenir propriétaire d’une maison répondant aux dernières normes sans les délais habituels dans le Haut Doubs (aux alentours de 18 mois).
Une Offre exceptionnelle
Une maison familiale aux dimensions parfaites
Une situation exceptionnelle à la frontière franco-suisse
Villers-le-Lac est une commune française située dans le département du Doubs en région Bourgogne-Franche-Comté, dans le canton de Morteau, à la frontière franco-suisse. Fortement appréciée des frontaliers, cette ville offre un cadre de vie idéal.
Nous vous y proposons un projet exceptionnel dont la première phase de construction est achevée. La seconde phase consistant en une extension contemporaine avec toiture terrasse est en démarrage.
Vous pourriez donc profiter d’une maison neuve aux dernières normes énergétiques, au style contemporain, dans un environnement de grande qualité, en un temps de construction record ( le temps de finaliser l’extension).
Une situation idéale pour vivre pleinement ses envies de verdure et de calme tout en privilégiant un accès immédiat aux grands axes.
Dans cet environnement, chaque saison offre une multitude d’activités et de loisirs (lac, randonnées, montagne, VTT, escalade, tennis mais aussi ski, golf, escalade…)csans oublier l’attrait de la culture et des meilleures tables avec Annemasse et Genève à deux pas ! Les amoureux de vie authentique pourront flâner sur le petit marché du dimanche matin puis contempler au retour, tranquillement installés sur la terrasse de leur maison, un panorama d’exception!
Des Prestations hauts de gamme
- Lotissement finalisé avec des constructions de qualité
- Jolie parcelle d’environ 665m²
- Vue imprenable
- Première Partie de la maison achevée. Les travaux de l’extension avec toit terrasse vont débuter
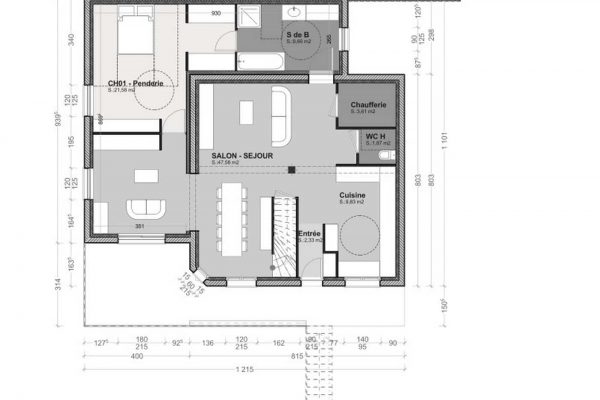
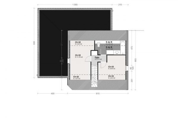
- Maison de124m² habitables
- 3 chambres dont une suite parentale
- 2 Salles de bain
- Grand espace de vie avec cuisine ouverte de près de 60m2
- Garage en sous-sol de 55m2
- Terrasse avec vue imprenable
En savoir plus sur cette maison neuve
Maisons Batilor
5 Grande Rue, 25500 Morteau
Tél :03 81 88 26 26







